Startseite arrow Hausbau arrow Häuser arrow EFH 119 m²  
 
Einfamilienhaus 119 m²
Dieses SHL-Landhaus hat 119 m² Nutzfläche. Das L-förmige Wohn- zimmer und die geräumige Küche bestimmen den Erdgeschoss- grundriss. Die sichtbare Holzbalkenlage schafft eine gemütliche Atmosphäre.

Mit unserer energiesparenden Gebäudehülle und innovativer Haus- technik sorgen wir dafür, daß Sie sich zuhause wohl fühlen und dabei monatlich Energiekosten sparen.
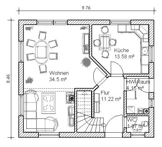
  Erdgeschoss       Obergeschoss      
    Wohnen   34,50 m²     Schlafen   14,55 m²  
    Küche   13,58 m²     Kind 1   13,39 m²  
    HWR   4,15 m²     Kind 2   10,97 m²  
    WC   1,87 m²     Bad   9,56 m²  
    Flur   11,22 m²     Flur   5,46 m²  
  Gesamtnutzfläche 119,25 m²  
Erdgeschoss
Obergeschoss
 
© 2024 - Site created by EDV-Beckmann