Startseite arrow Hausbau arrow Häuser arrow EFH 155 m²  
 
Einfamilienhaus 155 m²
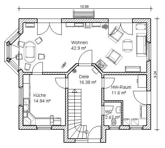
Erdgeschoss


Dieses SHL-Landhaus besticht durch die klare Grundriss- gestaltung und das großzügige Raumangebot. Die nach oben offene Diele im Eingangsbereich verleiht diesem Haus seine persönliche Note und sorgt für ein interessantes Erscheinungsbild innen wie außen.

Mit unserer energiesparenden Gebäudehülle und inno- vativer Haustechnik sorgen wir dafür, daß Sie sich zuhause wohl fühlen und dabei monatlich Energiekosten sparen.

  Erdgeschoss       Obergeschoss       Obergeschoss
    Wohnen   42,90 m²     Schlafen   15,78 m²  
    Küche   14,84 m²     Kind 1   15,56 m²  
    HWR   11,60 m²     Kind 2   12,58 m²  
    WC   2,67 m²     Bad   12,50 m²  
    Diele   16,38 m²     Abstellraum   3,10 m²  
              Galerie   6,90 m²  
  Gesamtnutzfläche 154,81 m²  
 
© 2024 - Site created by EDV-Beckmann