Startseite arrow Hausbau arrow Häuser arrow EFH 123 m²  
 
Einfamilienhaus 123 m²
Bei diesem Haus zur Ausführung gekommen ist eine Fassade als Boden-Deckelschalung in Kombination mit leuchtend blauen Fenstern und Türen.
Bei ausgewählten Qualitäts-Materialien trotzdem eine wirtschaftliche Lösung mit viel Platz für die kleine Familie.
Mit unserer energiesparenden Gebäudehülle und innovativer Haustechnik sorgen wir dafür, daß Sie sich zuhause wohl fühlen und dabei monatlich Energiekosten sparen.
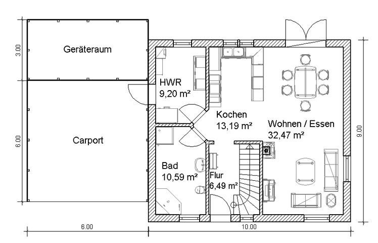
  Erdgeschoss       Obergeschoss      
    Wohnen/Essen   32,47 m²     Schlafen   9,40 m²  
    Kochen   13,19 m²     Kind 1   19,77 m²  
    Hauswirtschaftsraum   9,20 m²     Kind 2   19,67 m²  
    Bad   10,59 m²     Flur   2,76 m²  
    Flur   6,49 m²            
  Gesamtnutzfläche 123,54 m²  
Erdgeschoss
Obergeschoss
 
© 2024 - Site created by EDV-Beckmann