Mit vielen Details gerät dieses Haus von aussen sofort zum Blickfang. Vorn die heruntergezogene Satteldachgaube, die verzierten Fensterstürze sowie der lichtbringende Erker auf der Rückseite zeichnen mit den Holzelementen die natürlich-schöne Optik. Ein Arbeits- oder Gästezimmer im Erdgeschoss, die großen Kinderzimmer und der auf Wunsch offene Küche-Wohnbereich sind in einem pfiffigen Grundriß integriert. | | | Mit unserer energiesparenden Gebäudehülle und innovativer Haustechnik sorgen wir dafür, daß Sie sich zuhause wohl fühlen und dabei monatlich Energiekosten sparen. |
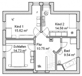
| | Erdgeschoss | | | | Obergeschoss | | | | | | | Wohnen | | 28,13 m² | | | Schlafen | | 14,73 m² | | | | | Küche | | 14,93 m² | | | Kind 1 | | 15,62 m² | | | | | Arbeiten | | 11,16 m² | | | Kind 2 | | 14,56 m² | | | | | Bad | | 2,93 m² | | | Bad | | 9,54 m² | | | | | HW-Raum | | 8,07 m² | | | Flur | | 10,75 m² | | | | | Diele | | 9,99 m² | | | | | | | | | Gesamtnutzfläche 140,41 m² | |
Erdgeschoss
| Obergeschoss
|
|