Startseite arrow Hausbau arrow Häuser arrow EFH 120 m²  
 
Einfamilienhaus 120 m²
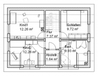
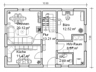
Erdgeschoss


Dieses SHL-Landhaus hat 120 m² Nutzfläche. Es bietet ein zusätzliches Zimmer im Erdgeschoss, daß als Büro genutzt werden kann. Zwei Gauben schaffen großzügige Räume im Obergeschoss. Die Küche kann bei Wunsch zum offenen Wohn- Essbereich umgestaltet werden.

Mit unserer energiesparenden Gebäudehülle und inno- vativer Haustechnik sorgen wir dafür, daß Sie sich zuhause wohl fühlen und dabei monatlich Energiekosten sparen.
  Erdgeschoss   Obergeschoss   Obergeschoss
    Wohnen   20,12 m²     Schlafen   9,72 m²  
    Küche   11,47 m²     Kind 1   12,26 m²  
    Büro   12,52 m²     Kind 2   11,90 m²  
    WC   2,89 m²     Bad   9,75 m²  
    HWR   8,57 m²     Abstellraum   1,64 m²  
    Flur   13,21 m²     Flur   7,37 m²  
  Gesamtnutzfläche 121,42 m²  
 
© 2024 - Site created by EDV-Beckmann