Startseite arrow Hausbau arrow Häuser arrow EFH 148 m²  
 
Einfamilienhaus 148 m²
Vor allem das große Wohnzimmer mit offenem lichtdurchfluteten Küchenbereich unterstreicht die Großzügigkeit dieses Hauses
mit 148 m².
Im Dachgeschoß befindet sich eine von zwei Räumen aus nutz- bare überdachte Loggia.

Ein interessantes Haus für sichtbar verbleibende Deckenbalken im EG und noch mehr Platz in Kombination mit einem Keller.
Mit unserer energiesparenden Gebäudehülle und innovativer Haustechnik sorgen wir dafür, daß Sie sich zuhause wohl fühlen und dabei monatlich Energiekosten sparen.
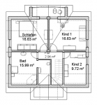
  Erdgeschoss       Obergeschoss      
    Wohnen/Essen   44,78 m²     Schlafen   16,63 m²  
    Küche   11,10 m²     Kind 1   16,63 m²  
    Arbeiten   10,18 m²     Kind 2   9,72 m²  
    WC   2,10 m²     Bad   15,99 m²  
    Diele   15,82 m²     Flur   2,94 m²  
    Diele   1,68 m²            
  Gesamtnutzfläche 148,57 m²  
Erdgeschoss
Obergeschoss
 
© 2024 - Site created by EDV-Beckmann