Startseite arrow Hausbau arrow Häuser arrow EFH 132 m²  
 
Einfamilienhaus 132 m²
Dieses SHL-Landhaus hat 132 m² Nutzfläche. Leben in offenen Räumen mit viel Licht. Einladend gelangen Sie vom Eingang bis zum offenen Wohn-, Essbereich. Eine sichtbare Balkenlage im Erd- geschoss und optional Holzsichtelemente in der Fassade geben diesem Haus einen modernen, natürlichen Charakter.

Mit unserer energiesparenden Gebäudehülle und innovativer Haus- technik sorgen wir dafür, daß Sie sich zuhause wohl fühlen und dabei monatlich Energiekosten sparen.
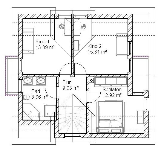
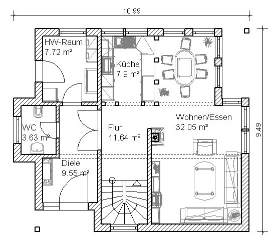
  Erdgeschoss       Obergeschoss      
    Wohnen/Essen   32,05 m²     Schlafen   12,92 m²  
    Küche   7,90 m²     Kind 1   13,89 m²  
    WC   3,63 m²     Kind 2   15,31 m²  
    HW-Raum   7,72 m²     Bad   8,36 m²  
    Flur   11,64 m²     Flur   9,03 m²  
    Diele   9,55 m²            
  Gesamtnutzfläche 132 m²  
Erdgeschoss
Obergeschoss
 
© 2024 - Site created by EDV-Beckmann