Startseite arrow Hausbau arrow Häuser arrow Bungalow 130 m²  
 
Bungalow 130 m²
Dieses SHL-Landhaus hat 130 m² Nutzfläche. Sie wohnen auf einer Ebene, haben die Privaträume aber zusammengeschlossen in einem Trakt. Der nachträgliche Dachgeschossausbau ist durch die vorgesehene Treppe leicht möglich und bietet nochmals 50 m² Wohnraum.
Mit unserer energiesparenden Gebäudehülle und innovativer Haustechnik sorgen wir dafür, daß Sie sich zuhause wohl fühlen und dabei monatlich Energiekosten sparen.
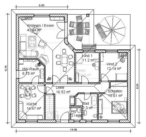
  Erdgeschoss              
  Wohnen/Essen   43,64 m²     Diele   17,36 m²  
  Küche   14,25 m²     Bad   9,72 m²  
  Schlafen   15,42 m²     WC   2,26 m²  
  Kind 1   11,32 m²     HWR   8,83 m²  
  Kind 2   11,88 m²            
Gesamtnutzfläche 131,90 m²  
 
© 2024 - Site created by EDV-Beckmann