Startseite arrow Hausbau arrow Häuser arrow EFH 136 m²  
 
Einfamilienhaus 136 m²
Die nach oben offene Diele im Eingangsbereich und die innen- liegende Geschosstreppe verleihen diesem Haus seine per- sönliche Note. Besonders ansprechend wirkt die symmetrische Vorderansicht mit dem Friesengiebelund den verzierten Holz- elementen. Die Küche kann auf Wunsch zum ohnehin schon großzügigen Wohnzimmer geöffnet werden.

Mit unserer energiesparenden Gebäudehülle und innovativer Haus- technik sorgen wir dafür, daß Sie sich zuhause wohl fühlen und dabei monatlich Energiekosten sparen.
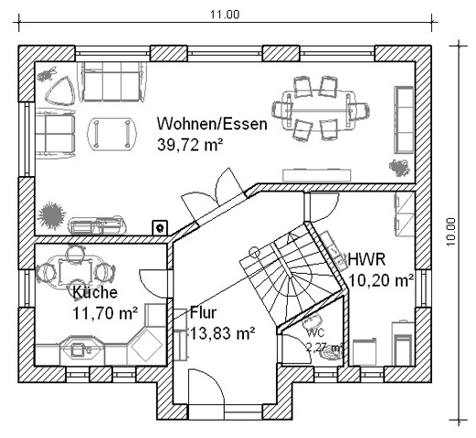
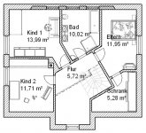
  Erdgeschoss       Obergeschoss      
    Wohnen/Essen   39,72 m²     Eltern   11,95 m²  
    Küche   11,70 m²     Kind 1   13,99 m²  
    WC   2,27 m²     Kind 2   11,71 m²  
    HW-Raum   11,20 m²     Bad   10,02 m²  
    Flur   13,83 m²     Flur   5,72 m²  
              Schrank   5,28 m²  
  Gesamtnutzfläche 136,39 m²  
Erdgeschoss
Obergeschoss
 
© 2024 - Site created by EDV-Beckmann